Zinnia


“The Sweetness Of Home"

The Jewel in the Sri Jaromas crown, Zinnia is a perfect residential community for those who love being around nature. Lush greenery, modernist homes and spectacular amenities make Zinnia the area’s most desirable address. Zinnia, a wonderful place to experience your dream while enjoying luxurious lifestyle.

Location Map Aeriel View E-Brochure


Features/Facilities:

    • Only 30 minutes from Klang and 40 minutes from Petaling Jaya, SRI JAROMAS sits on prime freehold land.

    • Accessibility & Connectivity:
      • KESAS Highway
      • SKVE Highway
    • Every modern amenity is in place to cater to the diverse needs of all generations.

  • Nearby Amenities:
    • Hypermarket
    • Shops
    • Offices
    • Playground
    • School
    • Medical Centre
zinnia-Site-plan-phase-1-l
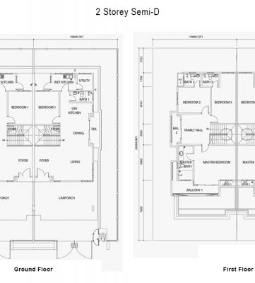
layout-1
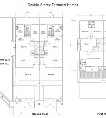
layout-2
artist-impression-1
artist-impression-2
artist-impression-3
artist-impression-4
artist-impression-5
artist-impression-6